
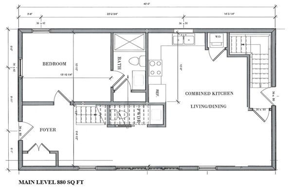
A 1,224 SQ FT, 1 BED/1LOFT, 2-1/2 baths on full ICF basement, close to the beach, walking distance to downtown! Ceramic tile showers ,bath and entrance, oak hardwood throughout. Lovely Quartz kitchen countertops. with rustic rails for upper stairs and loft areas. Interior finished in drywall with pine trim accents and pine ceilings. Blending the best of both rustic meeting modern This lovely new log chalet is a 5 minute walk to the well known Nickel Beach with over 1km-long white sand beach known for its shallow, clear waters and family-friendly atmosphere it offers amenities like volleyball courts, picnic areas, and accessible washrooms. Visitors can enjoy swimming, windsurfing, and an inflatable waterpark.


LOG HOMES FOR SALE
Copyright © 2025- 2026 LOG HOMES FOR SALE - All Rights Reserved.
We use cookies to analyze website traffic and optimize your website experience. By accepting our use of cookies, your data will be aggregated with all other user data.